OKM (2014) photo : Noboru Inoue

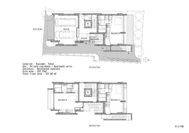
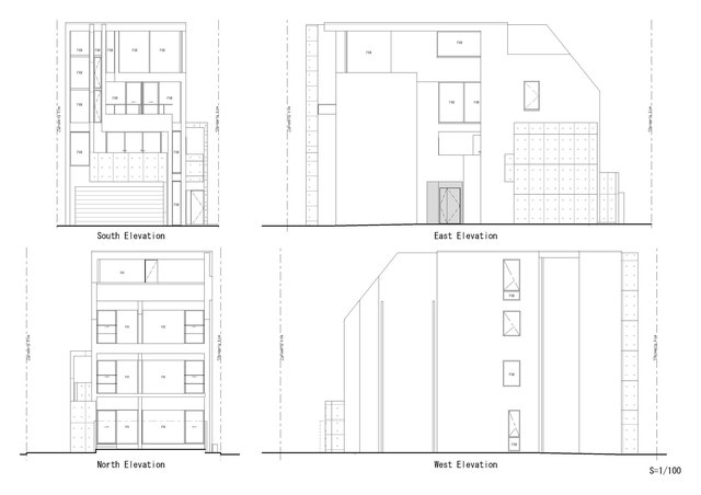
場所:東京都杉並区 用途:オーナー邸+賃貸住宅 構造:RC造 敷地面積:232.73㎡ 延床面積:327.88㎡ Location : Suginami, Tokyo Use : Private residence Structure : Reinforced concrete Site area : 232.73m2 Total floor area : 327.88 m2 都内の住宅地に建つ4階建ての賃貸住戸付住宅。 1・2階は駐車場と3戸のワンルーム賃貸住戸、3・4階がオーナー邸。 南側道路を挟んで向かいにポケットパークがある。南側公園に向けて大きく開くことを意図しながら、同時に道路からの視線を制御するよう配慮した。 道路側外観の3層の鍵型の構造体は、内部の空間構成を表現しながら視線を制御することを目的として計画した。 吹抜け部分は開口部から壁を突出させて構造体が縦ルーバーとして働くよう構成し、道路を行く人からの視線を遮り、内側からは視線を制御して公園の緑のみを見せる。 水平部は居室のバルコニーおよび手摺になっているが、下階ほど手摺壁を高くして道路からの視線を調整している。 4階からは新宿の高層ビル群を望むべく、鍵型の躯体によって東南の角に大開口を産み出している。 外断熱と床下空調を取り入れ、基本的に内部の壁天井はRC打ち放しとした。造作家具・建具とRCの対比のみでデザインが完結するよう配置を工夫した。




























